The Properties Group

  • Home
  • Properties
    • Retail
    • Office
    • Industrial
    • Development
    • Residential
  • About Us
    • Our Team
  • Contact Us
    • Staff Directory
613-237-2425
The Properties Group

  • Home
  • Properties
    • Retail
    • Office
    • Industrial
    • Development
    • Residential
  • About Us
    • Our Team
  • Contact Us
    • Staff Directory
info@prpgrp.com
613-237-2425

1754 Carling Avenue

Looking for certain features
1754 Carling Avenue
  • Home
  • Ottawa

1754 Carling Avenue

1754 Carling Ave, Ottawa, ON K2A, Canada

For Lease

$20.00 psf/annum

  • LEASED
  • LEASED
1754 Carling Avenue
  • Overview
  • Floor Plans
  • Map
  • Demographics

Property ID :

 Fairway

Share

Print

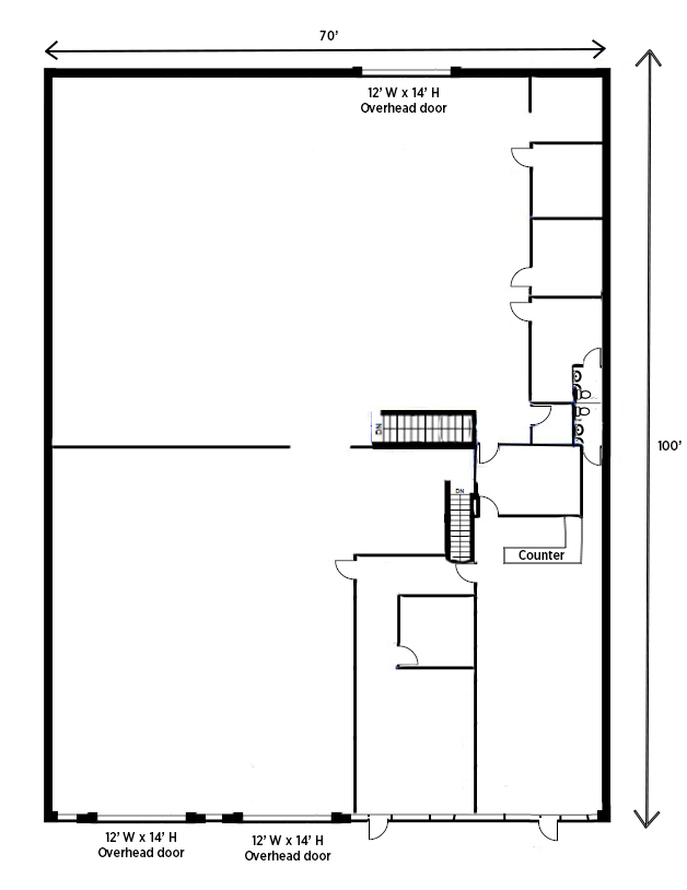
Located on Carling Avenue between Maitland and Clyde, this well-positioned 7,000 sq. ft. automotive facility offers exceptional functionality and space. Features include two front overhead doors and one rear overhead door, a mezzanine level, approximately 17-foot ceiling clearance, on-site parking, and generous storage capacity throughout.

An excellent opportunity for an automotive garage in a high-visibility location, available December 1, 2025.

Area
7,000 square feet (approx.)

Additional Details

  • Fixed Minimum Rent Commencing at: $20 psf/annum
  • Additional Rent: $8.12 psf/annum
  • Availability: December 1st, 2025

Floor Plans

Ground Floor

Ground Floor

Property on Map

Demographics

Carlington, Ottawa Population: 12,151
Median age: 35.8
Married couples: 50%
Families with kids at home: 34%
Speaks English only: 67.8%
Speaks French only: 2%

Source: The Carlington, Ottawa, ON data and statistics displayed above are derived from Statistics Canada and updated for 2021 by Environics Analytics.

Similar Properties

View Property
Ottawa

1309 Wellington Street W.

Nestled in the heart of Wellington Village, walking distance from…

Area
702 square feet (approx.)
For Lease

$4,000.00 /month

View Property
Ottawa

222 Somerset Street West, Unit 602/603

Centrally located one block from Elgin St., this ~2,755 sq.…

Area
2,755 square feet (approx.)
For Lease, For Sale

$14.00 psf/annum

About Us

The Properties Group Management Ltd. is a real estate investment and management firm engaged primarily in the acquisition and management of residential and commercial properties throughout central and eastern Canada. It is our mission to provide superior value to our tenants and investors.

 

Follow Us

Quick LInks

  • Home
  • Properties
  • Contact Us
    • Staff Directory
The Properties Group Management Ltd. BBB Business Review

Contact Us

236 Metcalfe St, Ottawa, Ontario K2P 1R3, Canada

613-237-2425

info@prpgrp.com

All personal customer and business information submitted through this web site will be held confidential.

Copyright © 2025 The Properties Group. All rights reserved.

|

Designed by Modern Webfare

Owning a home is a keystone of wealth… both financial affluence and emotional security.

Suze Orman
December 7, 2025 Sunday!
The Properties Group
  • Login
Forget Password?