The Properties Group

  • Home
  • Properties
    • Retail
    • Office
    • Industrial
    • Development
    • Residential
  • About Us
    • Our Team
  • Contact Us
    • Staff Directory
613-237-2425
The Properties Group

  • Home
  • Properties
    • Retail
    • Office
    • Industrial
    • Development
    • Residential
  • About Us
    • Our Team
  • Contact Us
    • Staff Directory
info@prpgrp.com
613-237-2425

1546 Chatelain Avenue

Looking for certain features
1546 Chatelain Avenue
  • Home
  • Ottawa

1546 Chatelain Avenue

Chatelain Ave, Ottawa, ON K1Z, Canada

For Lease

$5,500.00 /month

  • 260123 1546 Chatelain Front Industrial Unit Highlighted
  • 240711-Industrial-Reservoir-1
  • 240711-Industrial-Reservoir-2
  • 240711-Industrial-Reservoir-3
1546 Chatelain Avenue
  • Overview
  • Floor Plans
  • Map
  • Demographics
  • Brochure

Property ID :

 Reservoir

Share

Print

This unit offers approximately 2,841 sq. ft. of versatile split-level industrial space, located in the Clarington area. It is just minutes from Carling Avenue and Highway 417. The space features an expansive storage, an at-grade loading dock with 14 ft. clearance, an overhead garage door for efficient loading and unloading, ceiling heights ranging from 8 to 14 ft., and convenient on-site parking.

Area
2,841 square feet (approx.)

Additional Details

  • Rent Starting at: $5,500 per month
  • Available: Immediately

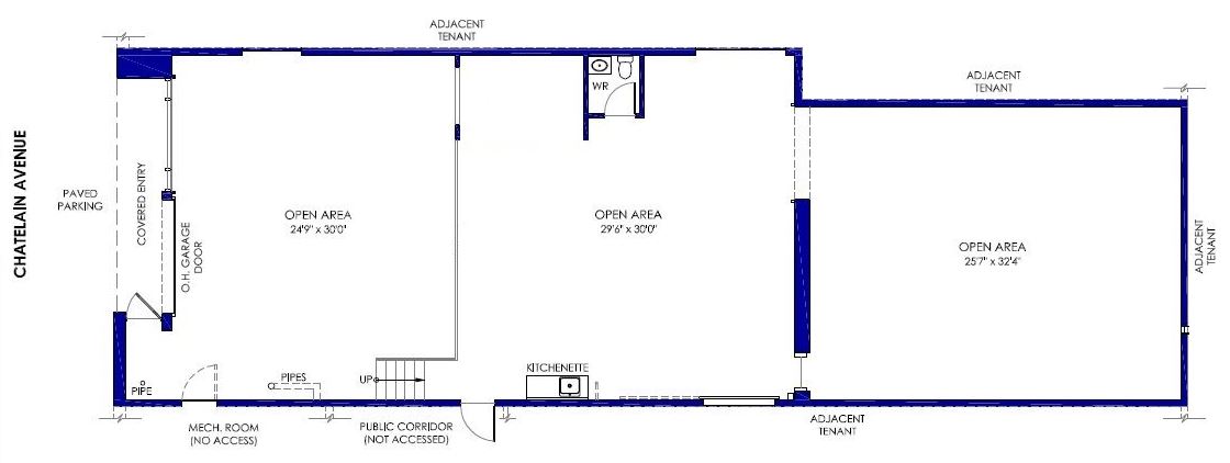
Floor Plans

Ground Floor

THE ATTACHED DRAWINGS ARE PROVIDED FOR INFORMATION PURPOSES ONLY AND SHOULD NOT BE RELIED UPON. THE LANDLORD SHALL NOT BE HELD RESPONSIBLE FOR THE PURPOSE OF THE TENANT’S WORK AND SPACE PLANNING.

Ground Floor

Property on Map

Demographics

Carlington, Ottawa Population: 12,151
Median age: 35.8
Married couples: 50%
Families with kids at home: 34%
Speaks English only: 67.8%
Speaks French only: 2%

Source: The Carlington, Ottawa, ON data and statistics displayed above are derived from Statistics Canada and updated for 2021 by Environics Analytics.

Sign up to obtain this property's brochure.

Select list(s) to subscribe to


By submitting this form, you are consenting to receive marketing emails from: The Properties Group, 236 Metcalfe Street, Ottawa, ON, K2P 1R3, http://prpgrp.com. You can revoke your consent to receive emails at any time by using the SafeUnsubscribe® link, found at the bottom of every email. Emails are serviced by Constant Contact

Brochure

250122 - 1546 Chatelain Ave.

Similar Properties

View Property
GTA

315 Hastings St. N, Bancroft – Pad Site

This pad site opportunity is located at the Northern tip…

For Lease

Call for rates

View Property
Ottawa

222 Somerset Street West, Unit 300

Centrally located one block from Elgin St., this ~6,666 sq.…

Area
6,666 square feet (approx.)
For Lease, For Sale

$14.00 psf/annum

About Us

The Properties Group Management Ltd. is a real estate investment and management firm engaged primarily in the acquisition and management of residential and commercial properties throughout central and eastern Canada. It is our mission to provide superior value to our tenants and investors.

 

Follow Us

Quick LInks

  • Home
  • Properties
  • Contact Us
    • Staff Directory
The Properties Group Management Ltd. BBB Business Review

Contact Us

236 Metcalfe St, Ottawa, Ontario K2P 1R3, Canada

613-237-2425

info@prpgrp.com

All personal customer and business information submitted through this web site will be held confidential.

Copyright © 2026 The Properties Group. All rights reserved.

|

Designed by Modern Webfare

Owning a home is a keystone of wealth… both financial affluence and emotional security.

Suze Orman
April 14, 2026 Tuesday!
The Properties Group
  • Login
Forget Password?